Startseite
Sanierungsprojekte
Projekte live
Energiesparhaus ÖKO+
Thermomodulhaus
Ernergiesparhäuser
modern bauen mit Holz
Konzertsaal Altes Schloss
Konzertsaal Musikschule
Projekterläuterungen
Gestaltungsentwurf
Bauhausmuseum Dessau
Wirstchaftsbgebäude
Referenzen + Häuser
Tiny-house Manufaktur Harz
Solar-Warmluftheizung
Thermo - Garage   / neu
Garagenbausatz
Gartenhäuser
Carports
Wir über uns
Impressum - Partner
Kontakt
Bildergalerie
 
 





"Altes Schloss" historisches Gebäude aus dem 13 Jh. Der Konzertsaal soll unter strengen Gestaltungsanforderungen der Denkmalpflege als Ersatzneubau des 1449 einem Brand zum Opfer gefallenen Ostflügels der ehemaligen Schlossanlage errichtet werden. Die konstruktiven Strebpfeiler vor der Hauptfassade zu den Freiflächen, sollen als Gebäudefragmente ehemaliger Bauwerke nachempfunden werden. Sie stehen solitär vor dem neuem Gebäude, was vollkommen schwebend über die Strebpfeiler gegründet werden soll.

Aus der Vogelperspektive wird das Gestaltungskonzept  in der Auslegung der Pfeiler als Bauwerksfragmente  erkennbar. Durch die frei vor der Fassade stehenden Pfeiler wird eine deutliche Gliederung der Ansicht erreicht. Das Gebäude wird durch die Pfeiler gegründet und schwebt vollständig über den Verkehrsflächen7 Freiflächen des  Erdgeschosses. Die Verkehrsflächen bleiben erhalten.

 Gestaltungsentwurf des Konzertsaal-Neubau, der Kreismusikschule LK Mansfeld Südharz im "Alten Schloss" unter Berücksichtigung denkmalrechtlicher Gesichtspunkte als funktioneller Bau in Thermomodul-Systembauweise als "schwebender Raum" . Die Anforderungen an den Standort, als auch die Bemühungen an den optimalen Raumklang wurden in besonderer Weise berücksichtigt. Als innovative Bauweise kann hier die Anwendung des konstruktiven Holzbaus im Konzertsaalbau, sowie die Bauweise als vollkommen schwebender Bau bezeichnet werden. Der Baukörper selbst funktioniert als Resorptionskorpus und die Verwendung schwerer Holzarten im Arkustikausbau in Kombination des geplanten variablen Raumsystems und optimierten Flächenbezugsgestaltung (Neigung, Größe, Schallwiederstand, Struktur) , sowie die Raumstruktur des Saales in drei gegleiderte Ebenen, weisen einmalige Besonderheiten auf. Dieses Projekt ist eine Innovation und wurde bisher in keinem bekannten Projekt unter diesen spezifischen Gestaltungsparametern angewendet. Die Konstruktion und Konzeption ist vollkommen neu und innovativ in Bezug auf die Flexibilität des Gesamtkonzeptes Bau gem. der gestellten Anforderungen.

In der Hauptansicht sollen die konstruktiven Bauteile der Strebpfeiler in der Form historischer Bauteilfragmente ausgebildet werden. So entsteht aus der Hauptblickachse der Freiflächen der Eindruck der Einbeziehung historischer Bauteile in den Naubaukörper, bzw. der Eindruck historisch gewachsener Gebäudestrukturen.  Gleichzeit wirkt das frei über den Gelände schwebende Bauwerk filigran und gegleidert. Die große Freitreppe zur Außengalerie stellt den äußeren Haupteingang dar. Auch die Galerie und die Treppe werden in der Gebäudeachse auf Pfeiler gegründet, die jedoch in der Gestaltung abgestuft und durch ebene Oberflächen charakterisiert sind. Somit werden die Größen und Formen der Gebäudeteile gut zueinander abgestuft. Das Bauwerk wirkt trotz seiner Größe insgesamt leicht und filigran. Zudem werden durch große Fenstergalerien Teile des Gebäudeinneren einsehbar. Somit vermischt sich in beiden Objektperspektiven, innerer/äußerer Eindruck die Umgebung mit dem Raum und umgekehrt. Es bestehen so insgesamt keine harten und sterng begrenzenden Gebäudekanten.

Der Haupteingang der Musikschule. Im Hintergrund der an den historisch erhaltenen Gebäudekörper des Alten Schlosses anschließende Konzertsaalneubau mit der über den Verkehrsflächen schwebenden Außengalerie des Saales. Die somit erhaltenen Verkehrsflächen können zukünftig bei Freiveranstaltungen als Sondernutzungsflächen , insbesondere bei schlechtem Wetter genutzt werden.  Die sowieso sehr begrenzten PKW-Stellplatzmöglichkeiten bleiben so fast vollständig erhalten. Rettungswege sind hierdurch im gesamten Nutzungsbereich des Betsandes, sowie des Saalneubaus in Richtung Hauptzugang gut gesichert.


Der gesamte Baukörper wird auf wenige tragende Pfeiler gegründet und durch eine spezielle Tragkonstruktion vollkommen (schallabgrenzend) von den Grundpfeilern entkoppelt schwebend errichtet. Die vorhandenen Freiflächen bleiben überwiegend erhalten und können Sondernutzungen zugeführt werden. Der Erhalt der verkehrstechnischen Infrastruktur ist für die spätere Nutzung insbesonder zur Schaffung ausreichender Flucht,-Rettungswege von besonderer Bedeutung. Ein Ausweichen der bei Freiveranstaltungen notwendigen Servicebereiche, sogar Teile der Veranstaltung unter das Saalgebäude ist denkbar.

Vollkommen frei schwebend wird der Konzertsaal-Neubau über den zu erhaltenden Verkehrsflächen im östlichen Teil des Geländes errichtet. Durch die Gründung des Gebäudes auf einzelne Fundamentpunkte, sind mögliche durch die Bauarbeiten selbst, sowie durch Lasteintrag undefinierte Auswirkungen auf die historsicshe Bausubstanz weitgehend vermeidbar.

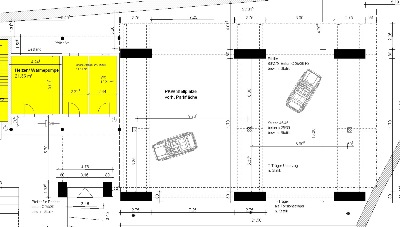
Hier die Grundrissdarstellung der Erdgeschossebene. Die Verkehrsflächen bleiben als offene nicht umbaute Flächen unterhalb des Baukörpers erhalten. Der gesamte Baukörper wird über die hier schwarz dargestellten Pfeiler gegründet.

Das Parkett bildet sich im 1. OG schwebend über dem EG mit den Verkehrsflächen aus. Das gesamte Gebäude schwebt schwischen den Strebpfeilern und bildet ein konzeptionellen Resonanzraum aus. Reflektierende Oberflächen und schallabsorbierende Oberflächen werden so zueinander kausgerichtet, das die Auslegung der Raumstruktur des Gebäudes im Verhältnis 1-1-2 in drei Gliederungsebenen optimal akustisch genutzt werden kann. Die Bauweise als schwebender Korpus unterstütz als Resonanzkörper die hier geziel erarbeitete Raumstruktur .

Der Saal mit den drei Ebenen. Parkett, Galerie mit Rang und der speziell erhöhe Dachraum zur Unterstützung der Raumakustik. Der Blick von der Bühne in den Rang zeigt die abgestimmte Dimmensionierung der Raumebenen. Als konstruktiver und frei schwebender Holzbau ,ist dieser Konzertsaal einmalig in seiner Gestaltung. Die ausgerichteten Reflexionsfläche des Dachraums unterstützt die Schallentwicklung mittlerer und langer Frequenzen (mittlerer und tiefer Töne). Die Akustig besitzt einen optimalen Nachhall . Die seitlich erkennbaren dunklen Wandflächen, werden als bewegliche Wandelemente ausgebildet, so das der Parkettraum den entsprechenden Klangvolumen der Orchesterbesetzung optimal angepasst werden kann. Die Ebenenstruktur , sowie die Lufträume zwischen den Ebenen sind so gestaltet, das eine gezielte Tondiffusität erreicht wird. Durch die Verwendung von Deckensegeln die seitlich zwischen den Pfeilern unter der Decke versenkt werden können, können zieggerichtet Teile des Luftraumes unterbrochen und Streuflächen zusätzlich eingesetzt werden. Dies ist insbesondere bei großer Besetzung des Orchesters und nur teilweiser Besetzung der Zuschauerplätze vorteilhaft. Die über dem Orchesterraum liegende kurze Empore unterstützt die Reflexion hoher Töne und bewirkz so ein sehr klares Klangbild bis in die hinteren Ränge. Auch Solisten haben hier einen großen Auftritt. 

Bewuste und für die Raumakustik speziell konzipierte Raumgliederung in drei Funktionsebenen. Hier der Blick über die Galerie ins Parkett. Die Abstimmung der Flächen in der Konstruktion und Metrialgestaltung ist wesentlicher Bestandteil der Konzeption den optimalen Raumklangs.

Die Saalzugänge erfolgen über Galerien im 1. OG mit Ausgang über die Empore zur Freifläche und dem Amphietheater, sowie zum Treppenhaus des Bestandsgebäudes der Musikschule.

Der Zugang zum Neubau des Konzertsaales ist auch über das Treppenhaus der Musikschule erreichbar. Über einen Zwischenbau im EG auch im Bestand vorhanden, werden die Gebäude miteinander verbunden. Die Galerie im OG  des Zwischenbaus nimmt auch die Garderobe und Toiletten auf, die bei Veranstaltungen genutzt werden. Von hieraus hat man einen grandiosen Blick auf die Freiflächen mit dem Amphitheater. Hier kommt das Konzept des offenen Raumes, der die Umgebung gegenseitig einbezieht gut zur Geltung. Leicht und offen wirkt dadurch die gesamte Gebäudestruktur. Der innen liegende und durch die Galerien umschlossene Saal wirkt nicht als massiger Baukörper.

Der Saal verfügt im Parkett (EG) über einen seitlichen Außengang (Galerie) mit zwei zusätzlichen Saal - Ein,-Ausgängen. Die Besucher , sowie die Künstler können hierüber strukturiert die Saalebene des Parketts betreten. Zudem wirkt der Bau sehr leicht und hell durch die großen Fenster zu den Freiflächen.

Der Grundriss des Parkettes mit den angrenzenden Galerien, dem Orchestergang und Nebenbereichen. Durch schwebende Wandteile zwischen dem Orchestergang und den Strebepfeilern, ist der Saalraum im Parkett variabel. So kann der  Raum optimal an die Klanganforderung unterschiedlicher Orchesterbesetzung angepasst werden. Kammermusik kann ebenso arkustisch inziniert werden wie Orchestermusik mit voller Besetzung. Auch kann der durch Schließen der Schwebewände vom Saal abgrenzbare Orchestergang zur Vorbereitung der Künstler auf ihren Auftritt genutzt werden. Gleiches gilt für die Aufnahme von Bühnenbildern und Dekorationen.

Der Rang ist gekennzeichnet durch die große Galerie zum Parkett. Die Grundfläche des Parkettes wird durch die Galerie im Rang komplett geöffnet , die speziell ausgerichteten Deckenflächen in der Erhöhung des Ranges unterstützen den Nachhall und reflektieren in alle Ebenen.








 
 
Top